Electric House Group

Product

표준모델

MODEL

50+ HOUSE 1

Profile
Person info
건축사 권 현 효
  • 건축사사무소 삼간일목 대표
  • (사)한국패시브건축협회 정회원
  • 홈페이지 : sgim.co.kr/
  • 이메일 : sgim01@naver.com
  • 전화번호 : 02-6338-3131
Story
이제 우리의 삶은 크게 보면 부모에게서 독립하여 자식을 양육하고 경제활동에 전념하는 첫 번째 50년과 자녀들에게서 독립하여 자기 자신을 되찾으며, 제2의 인생을 살아나가야 하는 두 번째 50년으로 구분할 수 있다. 두 번째 50년을 위한 삶의 방식과 가치는 이제 달라져야 한다. 50플러스 하우스는 두 번째 50년을 살기 위한 몸을 살리는 공간인 동시에 마음을 살리는 공간이어야 한다. 집은 이제 단순한 안식처의 기능을 넘어서 제2의 창조•생산공간으로 탈바꿈되어야 한다. 50플러스 세대를 위한 집은 이제 새로운 학교이자, 직장이며, 새로운 사회와 다시 만나는 접점으로 작동되어야 한다. 두 번째 50년을 위하여~ Bravo, My Life~~ 50플러스 하우스가 추구하는 원칙은 다음과 같다. 1. 최소의 집 : 유지 비용 및 관리가 부담되지 않는 집이어야 한다. (Electric-House) (에너지 자립, 탄소배출 최소화, 하자 및 관리가 부담되지 않는 집) 2. 최적의 집 : 건강을 지켜주는 쾌적한 집이어야 한다. (In-Cubator Space) (항온•항습, 충분한 환기, 숙면 및 면역력 증대에 도움이 되는 집) 3. 창의적 집 : 창조와 재생산의 활동이 가능한 집이어야 한다. (Out-Cubator Space) (생산•창의•활동 등 인생 후반전을 위한 새로운 가능성을 제공하는 집)
Info
대지위치(기후설정)
세종특별자치시 반곡동
대지면적
378.56㎡
건축면적
172.51㎡
연 면 적
172.51㎡ (주거공간-118.44㎡, 별채공간-37.60㎡, 포치-16.47㎡)
규 모
지상1층
구 조
경량목구조
설 비
복사냉난방시스템, 열교환환기장치, 제습모듈
주요마감
벽돌타일, 적삼목사이딩, pvc 로이삼중유리, 컬러강판
인증성능
3.7 L/(㎡·a) 패시브하우스
신재생에너지
태양광 패널 - 출력 : 5.9 kW | 생산량 : 6,375 kWh/a
Diagram
Product

표준모델 이미지

  • MODEL

    50+ HOUSE 2

    Profile
    Person info
    건축사 권 현 효
    • 건축사사무소 삼간일목 대표
    • (사)한국패시브건축협회 정회원
    • 홈페이지 : sgim.co.kr/
    • 이메일 : sgim01@naver.com
    • 전화번호 : 02-6338-3131
    Story
    100세 시대가 현실이 되었다. 이제 우리의 삶은 크게 보면 부모에게서 독립하여 자식을 양육하고 경제활동에 전념하는 첫 번째 50년과 자녀들에게서 독립하여 자기 자신을 되찾으며, 제2의 인생을 살아나가야 하는 두 번째 50년으로 구분할 수 있다. 새롭게 맞이하게 될 두 번째 50년은 은퇴와 정리의 삶이 아닌 삶에 대한 적극적인 도약이어야 한다. 50플러스 하우스는 새로운 미래를 향해 우리가 살아나가야 할 두 번째 삶에 관한 이야기가 펼쳐지는 집이다. 50플러스 세대의 집은 이제 새로운 삶의 방식과 가치가 요구된다. 몸과 마음을 재충전하는 공간을 넘어서 두 번째 삶을 위한 새로운 학교이자 일터가 되어야 한다. 50플러스 하우스가 추구하는 원칙은 다음과 같다. 1. 최소의 집 : 유지 비용 및 관리가 부담되지 않는 집이어야 한다. (Electric-House) (에너지 자립, 탄소배출 최소화, 하자 및 관리가 부담되지 않는 집) 2. 최적의 집 : 건강을 지켜주는 쾌적한 집이어야 한다. (In-Cubator Space) (항온•항습, 충분한 환기, 숙면 및 면역력 증대에 도움이 되는 집) 3. 창의적 집 : 창조와 재생산의 활동이 가능한 집이어야 한다. (Out-Cubator Space) (생산•창의•활동 등 인생 후반전을 위한 새로운 가능성을 제공하는 집)
    Info
    대지위치(기후설정)
    세종특별자치시 반곡동
    대지면적
    241.96㎡
    건축면적
    105.49㎡
    연 면 적
    186.12㎡ (주거공간-111.80㎡, 별채공간-43.52㎡, 필로티-30.80㎡)
    규 모
    지상2층
    구 조
    철근콘크리트조
    설 비
    복사냉난방시스템, 열교환환기장치, 제습모듈
    주요마감
    벽돌타일, 적삼목사이딩, pvc 로이삼중유리, 컬러강판
    인증성능
    3.3 L/(㎡·a) 패시브하우스
    신재생에너지
    태양광 패널 - 출력 : 5.9 kW | 생산량 : 6,375 kWh/a
    Diagram
    Product

    표준모델 이미지

  • MODEL

    건강한 노부부의 집

    Profile
    Person info
    건축사 박 현 근
    • 재귀당 건축사사무소 대표
    • (사)한국패시브건축협회 정회원
    • 홈페이지 : www.jaeguidang.com
    • 이메일 : phg@jaeguidang.com
    • 전화번호 : 02-408-6045
    Story
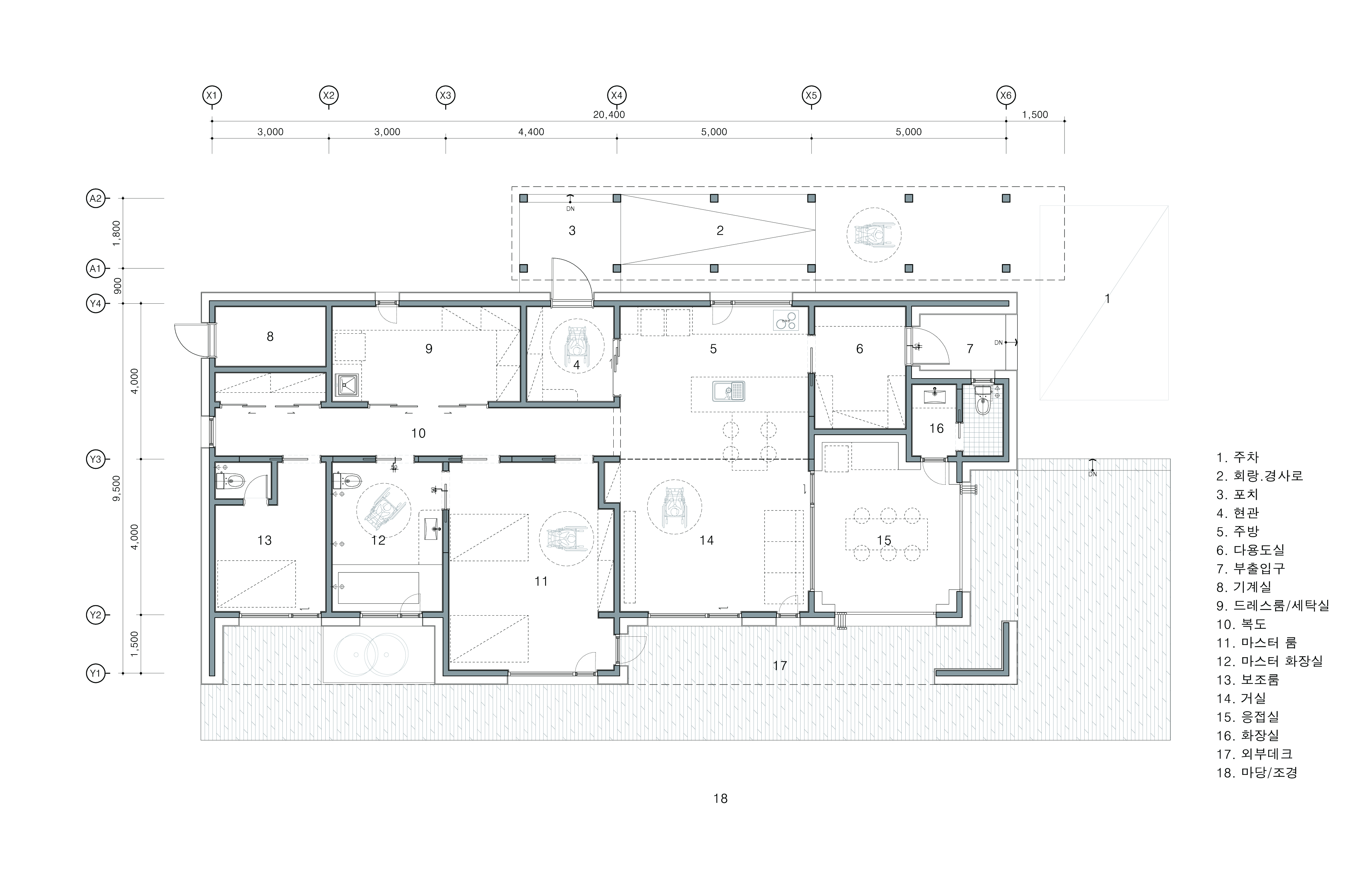
    “가끔 몸이 조금 불편할 뿐 의사소통과 인지능력은 아직 건강하다. 지인을 초대해 삶과 인생 을 이야기하며 여생을 즐기고 싶다. 변화하는 자연에 순간순간 반응하는 나의 감정을 느껴고 표현하며 살고 싶다. 우리 부부의 긴 여정이 마지막 순간까지 아름답고 싶다. 가끔 아내가 휠 체어를 타도 집안에서 전혀 불편함이 없고 케어 하는 나 또한 매우 편안한 공간이길 바란다. 하루하루가 자유롭고 소중한 시간이길 바란다. 그런 공간이 제공되었으면 한다” 건강한 노부부의 삶을 상상한다. 더욱 건강하게 오래 삶을 영위하기를 바래본다. 자유롭고 즐겁게!. 어떤 환경이 도움이 될 수 있을까?에 대한 해결책으로 ‘건강한 노부부의 집’을 제시 한다 ‘건강한 노부부의 집’이 추구하는 원칙은 다음과 같다 1. big & small space - 모든 공간의 크기는 일반적인 주거공간보다 여유가 있어야 한다. 모든 공간에서 휠체어 이동 및 보호자를 위한 넉넉한 공간이어야 한다. - 부부의 생활공간이 아닌 자녀, 손님 등을 위한 공간은 최소화 되어야 한다. 2. care & no care house - 온습도 및 공기질의 자동조절은 병실 수준 그 이상이어야 한다. 환자와 보호자 모두를 케어하는 최적의 공간이어야 한다. - 집(하드웨어, 소프트웨어) 자체의 관리와 케어를 위한 에너지는 zero에 수렴해야 한다. 3. active & passive rule - 병원이 아니다. 4계절 적극적으로 자연과 교감할 수 있는 공간이 제공되어야 한다. - 패시브하우스의 엄격한 룰에 의해 제공되어야 한다.
    Info
    대지위치(기후설정)
    양평군
    대지면적
    179.04㎡
    건축면적
    172.51㎡
    연 면 적
    179.04㎡ (주거공간-160.00㎡, 처마공간-29.04㎡)
    규 모
    지상1층
    구 조
    경량목구조
    설 비
    복사냉난방시스템, 열교환환기장치, 제습모듈
    주요마감
    벽돌타일, pvc 로이삼중유리, 컬러강판
    인증성능
    4.2 L/(㎡·a) 패시브하우스
    신재생에너지
    태양광 패널 - 출력 : 5.9 kW | 생산량 : 6,375 kWh/a
    Product

    표준모델 이미지

  • MODEL

    치유의 집

    Profile
    Person info
    건축사 임 상 우
    • 건축사사무소 서우 대표
    • (사)한국패시브건축협회 정회원
    • 삼육대학교 건축학과 겸임교수
    • 홈페이지 : http://seowooarchi.com/
    • 이메일 : seowooarchi@naver.com
    • 전화번호 : 070-4531-7002
    Story
    “치유의 집은 건축심리학을 통해 인간이 심리적으로 안정감을 느끼는 물리적 환경을 고찰하여 집의 기본적인 목적인 원초적 욕구 즉 생존 욕구를 충족시켜주는 것이다. 생존욕구에는 안전욕구, 휴식욕구, 공동체 욕구, 심미적 욕구등이 있는데 2상한 집(家)은 이러한 욕 구를 해결한다. 휴식욕구 - 편히 쉴 수 있는 내 삶의 오아시스 계획 누구의 간섭도 받지 않는 혼자만의 휴식이 있는 공간계획 공동체 욕구 - 가족 간에 소통의 중심지 공간 계획 심미적 욕구 - 사용자가 마음대로 할 수 있는 아름다운 공간 계획
    Info
    대지위치(기후설정)
    세종특별자치시 반곡동
    대지면적
    320㎡
    건축면적
    131.44㎡
    연 면 적
    131.44㎡ (주거공간-118.44㎡, 별채공간-37.60㎡, 포치-16.47㎡)
    규 모
    지상 1층, 다락
    구 조
    철근콘크리트구조
    설 비
    복사냉난방시스템, 열교환환기장치, 제습모듈
    주요마감
    벽돌타일, 석고보드 위 지정마감
    Product

    표준모델 이미지

  • MODEL

    도심속 백년주택

    Profile
    Person info
    건축사 정 재 학
    • 상하 건축사사무소 대표
    • (사)한국패시브건축협회 정회원
    • 한국예술종합대학교 미술원 건축과 출강
    • 홈페이지 : www.sangha-arch.com
    • 이 메 일 : sangha.and@gmail.com
    • 전화번호 : 02-737-8768
    Story
    상하씨에게 이 지역은 어릴 적부터 독립하기까지 살던 동네이다. 학교를 졸업하고 취업할 때까지 머물다가 결혼하고 다른 곳으로 분가했다. 이후 맞벌이인 부부는 아이의 돌봄 문제로 부모님께 약간의 신세를 지고자 집 근처로 이사 왔다. 나이가 들어 바라본 옛 동네는 꼬마였을 때의 추억도 있었지만 골목길과 상점, 공원을 걷는 재미와 작은 도서관이나 금세 단골이 된 작은 카페를 찾는 즐거움이 커졌다. 부모님이 오랫동안 사시던 2층주택을 이제 재건축해야되는데 1층은 상가로 임대를 주고 2층에 부모님, 3-4층을 복층으로 우리가족이 사는 것이 좋겠다는 생각이 들었다. 복잡한 도시내에 짓는 주택이지만 전원주택과 같이 쾌적하고 유지비용도 적게 드는 집을 가지고 싶었다. 또한 부모님과 아이의 건강을 위해서 도심에 살지만 건강한 집을 만들고 싶었다. 이 조건에 딱 맞는 선택이 전기집이었다. concept 도시에서 나고 자란 우리세대들은 도시를 벗어나서 살기가 쉽지 않다. 문화, 교육, 직장, 의료 등의 문제로 도시에 거주해야만 하는 상황도 무시할 수 없다. 도시내에서는 단독주택지가 적어서 보통 다가구, 다세대주택으로 계획되는 경우가 많다. 이런 공동주택에서의 전기집을 계획하였다. 표준주택은 1층 상가, 2층 임대주택, 3,4층 복층주택으로 평면을 구성하였다. 장기간의 친환경건축을 위해 기둥구조를 선택해서 자연스럽게 층간소음이 완화되고 칸막이벽의 변경이 쉽게 되었다. 전기집의 적용은 세대별로 옵션으로 적용가능하다. 안전하고 쾌적한 집 - 범죄예방 환경설계(CPTED)와 CCTV로 안전한 환경조성, IOT로 편리한 주거 관리 실현 - 폐열회수환기장치와 복사냉난방으로 도시안에서도 사계절 쾌적하고 건강한 생활이 가능. 2. 생활의 변화에 따라 내부 변형이 용이한집 - 층간소음이 적은 기둥구조로 칸막이벽 변경이 쉬움, 재택근무나 작업공간 조성편리 - 기둥구조와 설비공간 마련으로 추후 리모델링 용이 3. 경제적 자립이 가능한 집 - 임대를 주는 사람이나 사용하는 사람들 모두에게 이익창출 - 전기집의 적용은 각 층마다 옵션으로 선택가능
    Info
    대지위치(기후설정)
    서울특별시 용산구 용문동
    대지면적
    172.2㎡ (52.09 평)
    건축면적
    99.58㎡ (30.12 평)
    연 면 적
    303.71㎡ (91.87 평) (1층 81.61㎡,2층 84.12㎡ ,3층 83.93㎡,4층 54.05㎡)
    규 모
    지상 4층
    구 조
    철근콘크리트구조
    설 비
    복사냉난방시스템, 열교환환기장치, 제습모듈
    주요마감
    벽돌타일, PVC 로이삼중유리, 컬러강판
    신재생에너지
    태양광 패널 - 출력 : 5.9 kW | 생산량 : 6,375 kWh/a
    Product

    표준모델 이미지

  • MODEL

    상가형 전기집

    Profile
    Person info
    건축사 정 효 빈
    • ㈜정효빈건축사사무소 대표/건축사
    • (사)한국패시브건축협회 정회원
    • 홈페이지 : www.junghyobin.com
    • 이 메 일 : jhbarch@naver.com
    • 전화번호 : 02-6952-1105
    Story
    타국에 비해 가계자산 중 부동산의 비중이 압도적으로 높은 우리나라에서 부동산적 수익성을 고려하지 않기란 사실상 어려운 일이다. 특히나 서울처럼 토지가가 높은 도시에서는 말이다. 다소 불편할 수 있는 이러한 풍토에도 불구하고 집의 본질이 거주에 있다고 생각하는 사람들은 여전히 집이라는 꿈을 마음속에 간직하고 산다. 거주라는 집의 본질과 부동산적 수익성을 동시에 만족하는 집은 어때야 하는가? 그러한 집이 전기집을 만나면 또 어때야 하는가? 그러한 물음에 대한 하나의 대안으로 상가형 전기집을 제안한다. ‘상가형 전기집’이 추구하는 원칙은 다음과 같다. 1. 아름다운 전기집 - 전기집이라는 심상이 느껴지지 않는 아름다운 건축 형태 - 기능과 미를 동시에 구현하기 위한 세밀한 디테일과 재료 2. 상업적인 아름다움 - 임대율을 올리기 위한 건축 디자인의 구현. - 임대 욕구와 임대 금액을 상승시킬 수 있는 건축적 아이디어의 적용 3. 경제적인 구축성 - 시공성과 경제성을 겸비한 다채로운 평면과 입면의 구현 - 기밀공간과 일반공간의 확실한 구분으로 시공비 절약
    Info
    대지위치(기후설정)
    서울특별시 송파구 풍납동
    대지면적
    220.79㎡ (66.79평)
    건축면적
    131.94㎡ (39.91평)
    연 면 적
    489.50㎡ (근생: 295.28㎡, 주택: 194.22㎡)
    규 모
    지상5층 (1~3층: 근생, 4~5층: 주택
    구 조
    철근콘크리트구조
    설 비
    복사냉난방시스템, 열교환환기장치, 제습모듈
    주요마감
    벽돌타일, PVC 로이삼중유리, 컬러강판
    Product

    표준모델 이미지

  • 문의하기